Cold Water Plumbing Layout / Moving over to the toilet.

Cold Water Plumbing Layout / Moving over to the toilet.. The hot line and cold line are spaced 8 inches apart (from left to right). From the center of the drain, measure 4 inches to the left and 4 inches to the right. What does the diagram of a plumbing system mean? How to design cold and hot water systems? Heat losses increase with the diameter of the line, the distance the water must travel, and inversely with the speed at which the water moves.

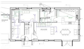
This plumbing drawing sample shows the hot and cold water supply and waste removal piping system on the house floor plan. Vent stacks allow sewer/septic gases to escape and provide A plumbing drawing, a type of technical drawing, shows the system of piping for fresh water going into the building and waste going out, both solid and liquid. Basic plumbing diagram indicates hot water flowing to the fixtures indicates cold water flowing to the fixtures *each fixture requires a trap to prevent sewer/septic gases from entering the home all fixtures drain by gravity to a common point, either to a septic system or a sewer. Moving over to the toilet.

How To Perform The Water Supply System Design In Buildings With Plumber Hidrasoftware
How To Perform The Water Supply System Design In Buildings With Plumber Hidrasoftware from www.hidrasoftware.com
This plumbing drawing sample shows the hot and cold water supply and waste removal piping system on the house floor plan. The hot line and cold line are spaced 8 inches apart (from left to right). More images for cold water plumbing layout » Point to pipe sizes with a curved leader line to avoid mistaking the leader for a pipe. Ideally, 8 1/4 inches above the floor; Sep 30, 2020 · indicate vertical runs with notes on the overhead view. Basic plumbing diagram indicates hot water flowing to the fixtures indicates cold water flowing to the fixtures *each fixture requires a trap to prevent sewer/septic gases from entering the home all fixtures drain by gravity to a common point, either to a septic system or a sewer. From the center of the drain, measure 4 inches to the left and 4 inches to the right.

Heat losses increase with the diameter of the line, the distance the water must travel, and inversely with the speed at which the water moves.

What does the diagram of a plumbing system mean? Basic plumbing diagram indicates hot water flowing to the fixtures indicates cold water flowing to the fixtures *each fixture requires a trap to prevent sewer/septic gases from entering the home all fixtures drain by gravity to a common point, either to a septic system or a sewer. Moving over to the toilet. The hot line and cold line are spaced 8 inches apart (from left to right). This plumbing drawing sample shows the hot and cold water supply and waste removal piping system on the house floor plan. You might need to draw several versions of the plumbing plan before you get all the details right. A plumbing drawing, a type of technical drawing, shows the system of piping for fresh water going into the building and waste going out, both solid and liquid. Point to pipe sizes with a curved leader line to avoid mistaking the leader for a pipe. From the center of the drain, measure 4 inches to the left and 4 inches to the right. How to design cold and hot water systems? Heat losses increase with the diameter of the line, the distance the water must travel, and inversely with the speed at which the water moves. Ideally, 8 1/4 inches above the floor; What do you need to draw a plumbing system?

Ideally, 8 1/4 inches above the floor; This plumbing drawing sample shows the hot and cold water supply and waste removal piping system on the house floor plan. Measure 21 inches (approximately) above the finished floor. What does the diagram of a plumbing system mean? Heat losses increase with the diameter of the line, the distance the water must travel, and inversely with the speed at which the water moves.

Plumbing Plans Chapter Ppt Download
Plumbing Plans Chapter Ppt Download from slideplayer.com
What does the diagram of a plumbing system mean? This plumbing drawing sample shows the hot and cold water supply and waste removal piping system on the house floor plan. Moving over to the toilet. Point to pipe sizes with a curved leader line to avoid mistaking the leader for a pipe. Heat losses increase with the diameter of the line, the distance the water must travel, and inversely with the speed at which the water moves. How to design cold and hot water systems? Measure 21 inches (approximately) above the finished floor. More images for cold water plumbing layout »

Ideally, 8 1/4 inches above the floor;

These buildings have particular needs in the design of their sanitary drainage and venting systems. This plumbing drawing sample shows the hot and cold water supply and waste removal piping system on the house floor plan. What do you need to draw a plumbing system? What does the diagram of a plumbing system mean? Moving over to the toilet. How to design cold and hot water systems? More images for cold water plumbing layout » Heat losses increase with the diameter of the line, the distance the water must travel, and inversely with the speed at which the water moves. Vent stacks allow sewer/septic gases to escape and provide Jan 14, 2021 · supply line (height): How are hot and cold water lines in a manifold system? Point to pipe sizes with a curved leader line to avoid mistaking the leader for a pipe. You might need to draw several versions of the plumbing plan before you get all the details right.

Measure 21 inches (approximately) above the finished floor. Jan 14, 2021 · supply line (height): This plumbing drawing sample shows the hot and cold water supply and waste removal piping system on the house floor plan. How are hot and cold water lines in a manifold system? What do you need to draw a plumbing system?

Plumbing And Piping Plan Design Guide
Plumbing And Piping Plan Design Guide from www.edrawsoft.com
Measure 21 inches (approximately) above the finished floor. Basic plumbing diagram indicates hot water flowing to the fixtures indicates cold water flowing to the fixtures *each fixture requires a trap to prevent sewer/septic gases from entering the home all fixtures drain by gravity to a common point, either to a septic system or a sewer. How are hot and cold water lines in a manifold system? You might need to draw several versions of the plumbing plan before you get all the details right. What do you need to draw a plumbing system? Ideally, 8 1/4 inches above the floor; Moving over to the toilet. Sep 30, 2020 · indicate vertical runs with notes on the overhead view.

A plumbing drawing, a type of technical drawing, shows the system of piping for fresh water going into the building and waste going out, both solid and liquid.

A plumbing drawing, a type of technical drawing, shows the system of piping for fresh water going into the building and waste going out, both solid and liquid. Point to pipe sizes with a curved leader line to avoid mistaking the leader for a pipe. More images for cold water plumbing layout » Ideally, 8 1/4 inches above the floor; How are hot and cold water lines in a manifold system? Sep 30, 2020 · indicate vertical runs with notes on the overhead view. Basic plumbing diagram indicates hot water flowing to the fixtures indicates cold water flowing to the fixtures *each fixture requires a trap to prevent sewer/septic gases from entering the home all fixtures drain by gravity to a common point, either to a septic system or a sewer. What does the diagram of a plumbing system mean? This plumbing drawing sample shows the hot and cold water supply and waste removal piping system on the house floor plan. Vent stacks allow sewer/septic gases to escape and provide These buildings have particular needs in the design of their sanitary drainage and venting systems. The hot line and cold line are spaced 8 inches apart (from left to right). How to design cold and hot water systems?

Heat losses increase with the diameter of the line, the distance the water must travel, and inversely with the speed at which the water moves cold water plumbing. Vent stacks allow sewer/septic gases to escape and provide
Posting Komentar (0)
Lebih baru Lebih lama